パタサク

- 事例紹介 -

重機不要で軽量運搬・簡単施工
環境に溶け込む景観配慮のNEW防除フェンス

線材日本NO.1メーカーと共同製造。
農地から、国立公園、水源地、ゴルフ場、など。
あらゆる場所で害獣の侵入を防ぐ。

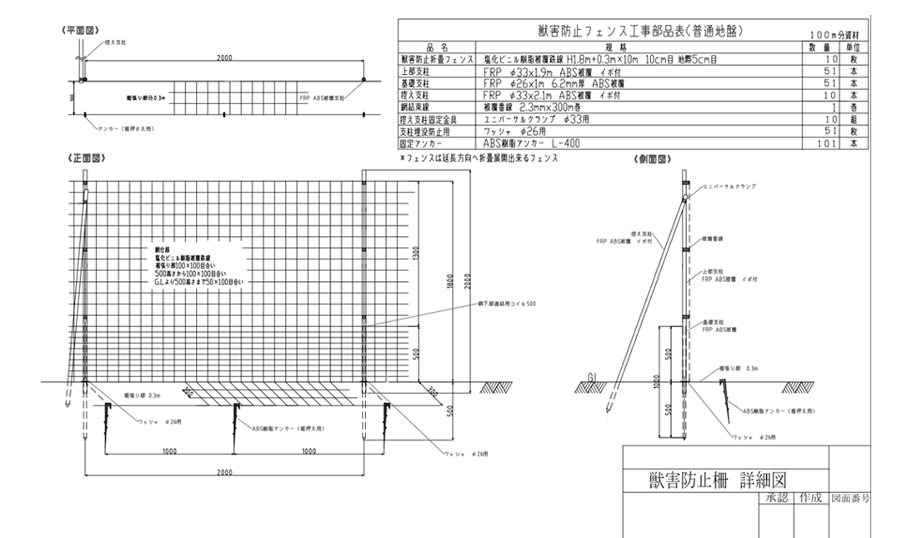
メリット

折りたたまれたフェンスを簡単に展開し誰でも楽に施工が可能。

ロールフェンスのような撒き癖なし。

省力化と工期短縮を実現。

環境色で、周囲の景観に自然に溶け込む。

支柱も錆びず、鋼管以上の強度を誇り30年耐久。

解決!

鹿やイノシシ等による農作物被害、ゴルフ場の芝の掘返し、希少植物の食害。

簡単施工で害獣防除
景観性◎ 環境配慮の亜鉛フリー

丹精込めて育てた農作物や国立公園の美しい景観が、日に日に深刻化する鳥獣被害に脅かされています 。従来の金網フェンスによる対策は、「重くて運搬が大変」、「設置に専門的な技術とコストがかかる」、「景観を損なう」といった、多くの課題を抱えていました。

正和商事が提案する横展開折り畳み式フェンス「パタサク」は、これらの課題をすべて解決する新発想のソリューションです 。約15kgと驚くほど軽量で 一人でも持ち運べ、ロールフェンスの様な巻き癖がないためフェンスの展開も簡単、重機なしでスピーディーな設置を実現します。

さらにシカの侵入を防ぐ高さ 、猪の突進に耐える強度 、そして小動物の侵入を許さない下部の細かいメッシュ構造 と、あらゆる動物に対応可能です。景観に溶け込む環境色で美しい眺めを維持しつつ 、30年の耐久性を誇る錆びない被覆線が長期にわたり大切な資産を守ります。

公園・山林で景観を維持×食害防止

公園・山林で景観を維持×食害防止
・国立公園や自然豊かな山林で、シカ等による希少な高山植物や樹木の食害が深刻。
・フェンスが重く、設置に多大な労力。
・環境への亜鉛流出。
・金属製フェンスの銀色による美観喪失。
■シカの侵入防止可能な高さと強度
。
■人の手で簡単に運搬・展開・設置可能。

■周囲の木々や土の色になじむ環境色採用。

農地の鳥獣被害を簡単施工で防止

農地の鳥獣被害を簡単施工で防止
・シカやイノシシ、サル、ハクビシンなど、様々な動物により農地の被害増。
・従来フェンスは重く、運搬や資材配置が大変。
・設置に手間とコスト。
■突進にも耐える高強度メッシュを採用。
■下部の網目を細かくすることで、小動物の侵入防止。
■従来フェンスより施工も容易で、自治体の補助金も活用可能。

ゴルフ場での獣害対策

ゴルフ場での獣害対策
・山間のゴルフ場における、シカやイノシシの侵入による深刻な芝の被害。
・通常フェンスは色の問題で景観悪化。
■突進にも耐える高強度メッシュを採用。
■下部の網目が細かく、小動物の侵入防止。
■従来フェンスより施工も容易で、自治体の補助金も活用可能。

行政との連携・補助金の活用について

市町村役場との連携もスムーズ 弊社はこれまで多くの市町村で鳥獣害対策の実績があり、行政との連携もスムーズです。対策を検討される初期段階から、安心してご相談ください。

補助金活用で賢くコスト削減 鳥獣害対策フェンスの設置には、国やお住まいの市町村が設けている補助金制度を活用できる場合があります。「どのような制度や補助事業があるか知りたい」といったご相談も承っております。導入コストを抑えるためにも、まずはお気軽にお問い合わせください。

施工写真

お問い合わせ

CONTACT

製品やサービスについてのお問い合わせ、
お見積もり依頼など、お気軽にご連絡ください。
専門スタッフが丁寧にご対応いたします。

お問い合わせフォーム